Description
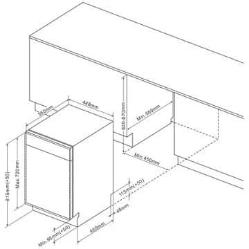
Installation
- Lave vaisselle encastrable DE DIETRICH
- Avantage tout intégrable : Le bandeau de commande est entièrement dissimulé dans la tranche de la porte. Ainsi, le lave-vaisselle tout intégrable est le plus discret de tous les appareils
- Façade décorative : Non incluse, il faut venir fixer la façade de votre cuisine équipée
- Type d’ouverture de porte : si votre plinthe mesure 9 cm ou moins, seul un lave vaisselle porte à glissière compatible plinthes basses sera adapté à votre cuisine. Cependant, si votre plinthe mesure plus de 9 cm, tous les systèmes d’ouverture de porte seront compatibles avec votre cuisine.
- Pieds réglables : Oui
- Top amovibles : Non
Confort sonore
- Lave vaisselle encastrable DE DIETRICH
- Niveau sonore mesuré en décibels : 44 dB
- Classe d’efficacité du niveau sonore : B
- Programme différé : 24 heures
- Avantage du programme différé : Permet de programmer un cycle de lavage aux heures creuses ou quand vous n’êtes pas présent
Séchage
- Type de séchage : naturel grâce à l’ouverture de la porte du lave-vaisselle en fin de programme
- Ouverture automatique de la porte : Oui
- Avantage de l’ouverture automatique de la porte : Après le cycle de lavage , la porte du lave vaisselle s’ouvre automatiquement pour laisser la vapeur s’échapper. Cela permet à l’air de pénétrer à l’intérieur et de sécher les ustensiles, plats et couverts.
Aménagement intérieur
- Nombre de couverts standard : 10 couverts
- Panier à couverts : 1
- Emplacement du panier à couverts : Modulable
- Tiroir à couverts : Non
- Panier supérieur réglable en hauteur : Oui
- Avantage du panier supérieur réglable en hauteur : Permet de laver des plats de grandes tailles ou de grands verres à pieds.
- Panier du bas relevable : Non
- Picots rabattables : Oui
Programmes
- Nombre de programmes : 8
- Détails des programmes et températures : Intensif;Eco;ICS+;90 min;Rapide 30 min;Verre;Universel;Trempage
- Programme demi charge : Oui
- Capteur de salissure : Oui
Praticité
- Affichage au sol : Oui
- Avantage de l’affichage au sol : Indique que le produit est en fonctionnement. Pour un séchage optimal, attendre l’extinction du voyant (même si la porte est déjà ouverte)
- Affichage du temps restant : Oui
- Affichage bande lumineuse : Non
- Connecté : Non
- Eclairage intérieur : Non
- Dosage automatique : Non
Consommation et économie d’énergie
- Nous avons calculé pour vous : les consommations des appareils ménagers (lave linge, lave-linge séchant, lave-vaisselle, sèche linge) sont calculées avec le programme éco 40 60°
- Durée du cylce du programme de référence (programme éco) : 4 h
- Consommation en électricité pour 100 cycles (programme éco) : 59 kWh
- Consommation en eau (programme eco) : 8,5 litres / cycle
- Coût annuel électricité (basé sur 280 cycles) : 42 euros par an
- Coût annuel eau (basé sur 280 cycles) : 10 euros par an
- Coût annuel d’utilisation (basé sur 280 cycles) : 52 euros par an
- Label énergie : C
- Basse consommation : un changement de classe représente 10% d’économies sur la consommation d’énergie
- Compatible raccordement eau chaude : Non
Conception
- Type de moteur : Classique
- Paroi de la cuve : Inox
- Avantage de l’inox : L’inox est un matériau de haute résistance gage de qualité et de durabilité. En plus, l’inox permet d’éviter les mauvaises odeurs !
Sécurité
- Sécurité enfant : Non
- Sécurité aquastop : Oui
- Principe de l’aquastop : Coupe l’arrivée d’eau dans le lave-vaisselle en cas de détection de fuite ou de débordement
Dimensions
- Poids net : 35,0 kg
- Poids brut : 38,0 kg
- L x H x P : 44.8 x 81.5 x 55 cm
Informations complémentaires
- Fabriqué en : Chine
- Garantie : 2 ans
- Disponibilité des pièces détachées : Pendant 15 ans, à compter de la date d’achat
- Référence constructeur : DV301044J
- Marque : DE DIETRICH
- Indice de réparabilité : 9,3 /10
Vous pouvez découvrir d’autres produits de notre catalogue en cliquant ici
















There are no reviews yet.